Walk in home SP

誰でもすぐに使える操作が簡単な建築プレゼンCADシステム

Walk in home SP(ウォークインホームSP)とは

Walk in home(ウォークインホーム)はプランニングから様々なシミュレーションまで「早く」「きれいに」「正確に」CAD知識を必要とせず誰でもすぐに使える操作が簡単なプレゼンCADシステムです。完全3次元CAD(Walk in homeウォークインホーム)であり、すべての機能が連動して変更されるので、変更・修正のトラブルがなく容易に扱うことができます。
また、対面プレゼンを意識した設計なので、ビジュアルをプレビューしながらプランの立案やフルカラーの3Dパースを作成することができます。

Walk in home(ウォークインホーム)は、基本パッケージ(スタンダードとプロフェッショナル)が2タイプあります。
 

リアルな高画質パースで最高のプレゼンテーション

屋根形状、内装建材(建具、フローリング・クロスなど)、外装建材(外壁・タイルなど)、住宅設備(キッチン・トイレなど)の変更も簡単にできます。パースを見ながら変更が可能ですので、お客様が相談しながら建物の具体的なイメージを表現することができます。

構造計画ができるデザインツール

Walk in home(ウォークインホーム)はデザインと構造(木造軸組)を同時に検討することができます。構造を軸組みパースに表現することで、お客様にわかりやすいプレゼンテーションできます。意匠から構造計画まで一度にできるので、あらゆる変更がその場で行えます。デザインだけでなく構造の提案にも効果的です。

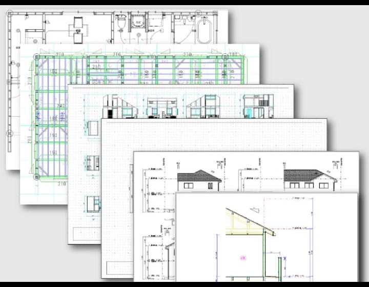
建築図面を簡単操作で自動的に一括作成

意匠計画から構造設計までの各種建築図面を簡単操作で自動的に一括作成が可能です。意匠計画に用いる平面図・立面図・断面図・1/50平面詳細図などの各種図面、構造設計に用いる基礎伏図・各階床伏図・各階天井伏図など各種伏図を自動作成することができます。

Walk in home S[スタンダード](プレゼン)機能のご紹介


 

Walk in home(ウォークインホーム)の入力は簡単!

間取りを矩形もしくは、連続入力するだけでパースが立ち上がります。
 


 

土地活用提案のパース作成

プランより土地形状に合わせたプランを検索し、その中から選択することで、敷地に建物を建てたイメージパースをすぐに制作できます。
 


 

Walk in home(ウォークインホーム)はパースを立ち上げても自由自在に変更

Walk in home(ウォークインホーム)はパースを立ち上げてからも、自由自在に変更できます。パースで変更した内容は平面にも反映します。
 


 

Walk in home(ウォークインホーム)の日当りのシミュレーション

季節や時間に応じた日当たり設定が可能で一日の日照の変化が確認できます。
 


 

Walk in home(ウォークインホーム)リアルなCG画像

間取りが決まったらレンダリング(画像仕上げ)をかけるとリアルなCG画像が出来上がります。
 


 

Walk in home(ウォークインホーム)は耐力壁計算(筋交い計算)が可能

Walk in home(ウォークインホーム)は、建築CADなので、耐力壁計算(筋交い計算)も行えます。プレゼンだけではなく実際にプランが建つのかのチェックもできます。
 


 

Walk in home(ウォークインホーム)は、北側斜線や道路斜線のチェックが可能

Walk in home(ウォークインホーム)は、敷地を入力すると北側斜線や道路斜線のチェックができます。
 


 

Walk in home(ウォークインホーム)はリフォームにも対応しビフォアーアフターの表示や積算も可能

 


 

Walk in home(ウォークインホーム)は、直下率計算が可能

Walk in home(ウォークインホーム)は、建築CADなので、直下率計算も行うことができます。
 


 

Walk in home(ウォークインホーム)は、いろいろなプレゼンボードに出力ができます

 


 

Walk in home(ウォークインホーム)は、太陽光パネル、低炭素住宅の計算が可能

外皮計算
 

Walk in home S タイプ(スタンダード)の動画をご覧ください

 

Walk in home P[プロフェッショナル]機能のご紹介


 

ボードレイアウト(下地材割り付け機能)

Walk in homeは屋根の野地板・壁の合板、サイディング・床合板など下地材の割り付けができます。千鳥貼りやイモ貼りなど張り方により最適な割付や端材の使いまわしができロスを削減できます。
 


 

構造伏せ図

Walk in homeは構造伏せ図にも対応しており、基礎伏せ図・土台伏せ図・1F床伏図・2F床伏図・1F梁伏せ図・2F梁伏せ図・小屋伏せ図などを作成できます。構造CADの機能スパン表も持っており、自動生成で一括して作成することが可能です。また継ぎ手や仕口などの情報も持ち建築CADでありながら、構造CAD並みの情報も持っています。伏せ図から木拾い帳票も出力でき、意匠と構造を融合させることでリアルなパースが表現できます。
 


 

構造CAD連携

Walk in homeは、構造CADとの連携が可能でMPCAD(宮川工機)トーアCAD・ネットイーグルと連携することができ、プレカット工場との連携が可能です。(注:オプションのエクスポート・CDXMA)が必要です。
 


 

金物計算

Walk in homeは金物計算にも対応しており、N値計算や告知計算を選択することで金物を自動配置してくれます。
 


 

設計図書機能

Walk in home(ウォークインホーム)は、建築CADとして複数の設計図書をすべて自動作成します。
 


 

長期優良オプション

長期優良オプションを追加することで性能チェックシート・水平構面伏せ図・階段面積等が出力できます。JWCADとダブルクリックするだけでシームレスに連携し、レイア分けも自動で行われるのでJWCADを使用している設計者に万能の機能です。その他設計者向けオプションとして、天空率計算・環境シミュレ―ション(風の流れ)などの機能を追加可能です。
 


 

ZEH対応

Walk in homeはZEH(ネット・ゼロ・エネルギー・ハウス)に対応しており太陽光パネルシミュレーション・外皮性能計算・1次エネルギー計算など煩わしい計算を瞬時に行い、申請書まで一括して出力することができます。
 

Walk in home SP の導入実績は1200社以上

2002年より長きに渡ってリリースされている安定した使用感は初心者からプロレベルの方まで人気を集めています。

神奈川県工務店


 

夢ハウス


 

日鉄エンジアリング


 

Walk in home の導入環境

最小環境

OS  Windows8以降64ビット対応
CPU  Corei5以上
メモリー  RAM8GB以上
HDD空き容量  10GB以上
GPUメモリ  VRAM1GB以上
外部接続  USB2.0以上ポートx1

推奨環境

OS  Windows10以降64ビット対応
CPU  Corei7以上
メモリー  RAM16GB以上
HDD空き容量  SSD10GB以上
GPUメモリ  NVIDIA GeForce GTX 1660以上
外部接続  USB2.0以上ポートx1

費用

ユーザーの声

奈良県Sホーム様
以前は、パソコンに弱い自分は、スタッフが帰った後に必死でプラン入力をしてました。教えてくれる人もいましたが自分のレベルが低すぎてなかなか聞けず、1件のお家を入力するのに何度も朝を迎えたこともありました!キャドネットのWalk in home(ウォークインホーム)を導入してからは、キャドネットのサポートスタッフに会えて本当に感謝しています。スタッフのみなさんは、「使い方を指導しなさい」ときっと会社から言われていると思いますがでもみんな優しくて自分にあったレベルで教えてくれたり、すごく良くしてくれます。人に聞くってすごく苦しくて気を使ってしまうところなんですが、キャドネットのサポートは、心優しく接してくれるので本当に感謝しています。キャドネットのサポートは、本当の仲間のように接していただき、一緒に悩んだり、笑ったりと!皆さんと出会って本当に感謝していますのでこれからも仲間だと思ってよろしくお願いします!

神奈川県S社様
キャドネットの【Walk in home】は初心者でも簡単に操作できるそこがいいんです!!元々使っている積算ソフトと連携が取れるソフトを探していた際にWalk in homeを知りました。元々使っている積算ソフト(○○係長)に連携が取れる点と、誰でも簡単に操作できる点が気に入り購入しました。導入する際は、F社のACADと検討しましたが、①プランに入力が簡単にできて素早く対応が出来る。②入力したプランを積算ソフトに連動する事が出来る。③値段が安い。それでキャドネットのWalk in home(ウォークインホーム)に決めました。

香川県Yホーム様
以前は、F社のACAD(設計)、マイホームデザイナー(プレゼン)、JWCAD、ハッピー棟梁(見積作成)・EXCEL等々江御使ってました。もうそろそろ限界に来ていたところで何かいいシステムはないかと探していました。そんな折に(キャドネット)のホームページを見て問合せしました。現在は設計図面を中心に、確認申請図面や、現場施工図まで幅広く使用しています。またJWCAD連携ができるので素早い対応が可能ですね。いつも遠隔操作ですぐつないで対応して頂いて助かっています。

外壁サイディングメーカー様
キャドネットの【Walkinhome】は外壁(サィディング)の割付ができる!そこがいいんです!!【キャドネットのWalkinhomeを選んだ理由は?】①操作が簡単にできて素早く対応ができる。②時間短縮が図れる。③積算・拾い出しができる。以上3点ですかね。【Walkinhomeはどのように活用していますか?】外壁のサィディングの拾い出しに活用しています。1棟入力するのに大体30分ぐらいですかね。非常に速いです。遠隔操作ですぐつないでわからない所を教えて頂いて助かってます。

導入のメリット

> お施主様がイメージしやすい最高のプレゼンが出来る

> きれいなパースが作れる

> スマートフォンで3Dプレゼンが出来る

> SNS(ソーシャルネットワークサービス)を活用した動画配信でブランド構築・集客ができる!

> 超リアルなパース・動画で他社との差別化ができる

> 受注安定・拡大につながる

 

Walk in home 4つの充実サポートと特典

キャドネットは充実のサポート体制でいつでもお手伝いいたします!

 
 
平日・土曜日
9:00 - (LO19:30) 20:00

 
 
年中無休
24時間受付中
回答は営業時間内となります

 
 
平日・土曜日
9:00 - (LO19:30) 20:00
ネット回線で相互の画面を共有

 
 
平日
9:00 - (LO19:30) 20:00
1棟7,000円より